Type de projet :
Burelen
Afbeelding
Afbeelding
Afbeelding
Afbeelding

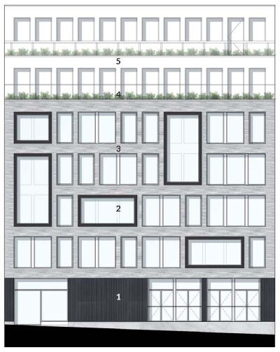
Het "Fonds National de la Recherche Scientifique" en het "Fonds Wetenschappelijk Onderzoek - Vlaanderen" gunnen de opdracht voor de volledige renovatie van het gelijkvloers en de voorgevel van hun gebouw aan het team van DEWIL architecten - NEY&partners - Cenergie. Momenteel loopt de vegunningsaanvraag.

Newsletter

Blijf geïnspireerd

Schrijf u in op onze nieuwsbrief en ontdek onze nieuwste creaties, architecturale trends en innovatief advies voor uw projecten.

Afbeelding
Afbeelding
Afbeelding
Afbeelding

Fonds Wetenschappelijk Onderzoek - FRS FNRS

Klant
FRS FNRS + FWO
Architect(en)
Gaëlle Cnop, Olivier Rousseau, Pierre Dewil
Stabiliteitsingenieur
Ney & partners
Technisch projectingenieur
Cenergie
Beschrijving

Het "Fonds National de la Recherche Scientifique" en het "Fonds Wetenschappelijk Onderzoek - Vlaanderen" gunnen de opdracht voor de volledige renovatie van het gelijkvloers en de voorgevel van hun gebouw aan het team van DEWIL architecten - NEY&partners - Cenergie. Momenteel loopt de vegunningsaanvraag.